Tal como se dio a conocer el pasado mes de diciembre, el Centro de Salud se trasladará a la zona de los antiguos colegios de la carretera. Un cambio de ubicación por el que el Ayuntamiento ha venido trabajando en los últimos años y que cada vez se encuentra más cerca de ser una realidad.
Esta semana, el Alcalde ha mantenido una reunión de trabajo con técnicos de la Consejería de Salud y el equipo de arquitectos encargado del diseño y la elaboración del proyecto de obras que la Junta de Andalucía ha ordenado redactar, en la que se ha dado a conocer cómo será el nuevo Consultorio.

“Un Centro de Salud moderno, bien equipado y con una ubicación excepcional”, tal como ha destacado el Alcalde, para cuyo diseño se ha tenido muy en cuenta la arquitectura del edificio que albergará estas instalaciones, respetándose su imagen exterior en la mayor medida posible.
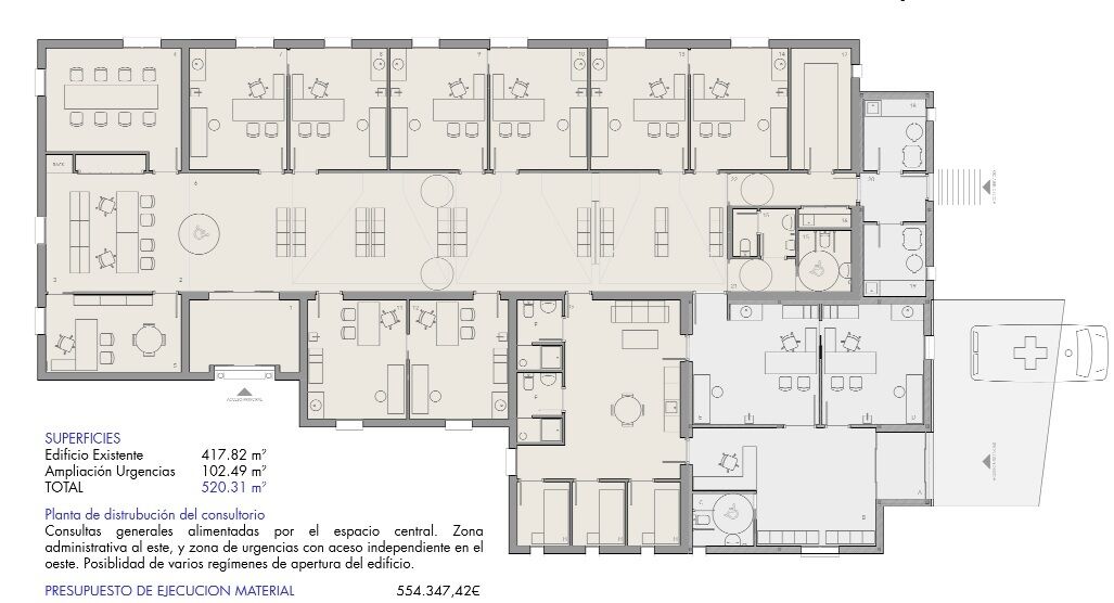
De una única planta, el nuevo Centro de Salud contará con una superficie total de 520 metros cuadrados. Dado que actualmente la superficie del edificio es de 417 metros cuadrados, se va a llevar a cabo un proyecto de ampliación, con la construcción de un espacio de 102 metros cuadrados reservado para atender las urgencias.
De este modo, el nuevo Centro de Salud se dividirá en dos zonas con accesos independientes, pero al mismo tiempo comunicadas entre sí, una para la Atención Primaria y otra para las Urgencias.

En el caso de la zona reservada para consultas médicas y de enfermería, se accederá a través de la calle Nuestra Señora de los Dolores. Tal como se puede observar en los planos del proyecto, se le ha dado una especial importancia a la sala de espera.
Diáfana y más funcional, esta sala ocupará la zona central del edificio, distribuyéndose a ambos lados las consultas médicas y de enfermería. Dado que para la redacción del proyecto uno de los pilares básicos ha sido dar confort ambiental al edificio, se ha optado por proporcionarle iluminación y ventilación natural a través del tejado que cubrirá la sala de espera y cuyo diseño, de tres pirámides, aportará luz, con acceso solar en los meses más fríos, al mismo tiempo que impedirá la entrada directa del sol en las horas centrales del día en los meses más calurosos.
Asimismo, se va a aportar una nueva capa de aislamiento a toda la fachada y cubierta del edificio actual, mejorándose con ello el envolvente térmico. Esto, además de permitir un ahorro notable de energía, mejora el confort de los usuarios que acceden al Centro de Salud.

También formarán parte de las dependencias del nuevo edificio una oficina para funciones administrativas, una sala de reuniones y un espacio independiente para la atención al público en el que se respete la privacidad e intimidad del vecino cuando acude a pedir cita.
En cuanto a la zona de urgencias, con acceso desde la Avenida de El Puente, para su construcción se respetará la imagen del edificio actual, aunque se introducirán algunos elementos más modernos y visuales, como una pérgola de grandes dimensiones que permita a los vecinos y visitantes ubicar rápidamente este espacio.
Junto a esta área de nueva construcción, se acondicionará una estancia destinada a la dispensación de residuos y deshechos sanitarios con acceso independiente, con el objeto de que no contaminen otras salas y espacios del Centro de Salud.

“Un proyecto importante para Castilblanco, pues afecta a todos los castilblanqueños, a todas las personas que residen en nuestro pueblo, y a quienes nos visitan”, según ha comentado el Alcalde, y por el que “este Equipo de Gobierno viene trabajando desde hace años, siendo ésta una clara apuesta por la mejora de nuestras infraestructuras, especialmente, de las que afectan a todos los vecinos y vecinas, lo que también repercutirá, ya no sólo en la mejora de los accesos a los servicios sanitarios, sino también en su calidad”.
